(11) 4044-5424 / 4044-5417
Rua Avaré, 149 - Diadema - SP

INVERSOR DE FREQUÊNCIA 3G3RX - Tabelas e características técnicas e catálogos

Inversores de frequência OMRON

Inversor de frequência Série 3G3RX de Controle vetorial de Malha fechada, Série de Inversores de Frequência avançados com excelente regulação de torque e velocidade.

Características

Customizado para sua máquina

Até 132 kW (200 HP)

Torque de alta partida em loop aberto: 200% em 0.3 Hz

Torque total em 0 Hz em loop fechado

Controle de malha fechada de vetor e sem sensor

Filtro EMC embutido

Capacidade de Programação Lógica Embutida

Funcionalidade da aplicação embutida

Funcionalidade do posicionamento

Economia automática de energia

Supressão de tensão micro-surto

Modbus RS485 (opções para outras redes)

CE, cULus, RoHS

Classificações:


Classe 200 V trifásico, 0.4 a 55 kW (1/2 a 75 HP)

Classe 400 V trifásico, 0.4 a 132 kW (1/2 a 200 HP)

Classe 200v 3G3RX

Classe 400v 3G3RX

DIMENSÕES

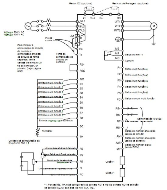
CONEXÕES

SNUMAM SERTEC © Todos os direitos reservados.